Active Communities

Recently Built

Kinship

  • 5 Bedrooms
  • 6.5 to 7.5 Bathrooms
  • 4 Car Garage
  • 5,616 AC SQFT
  • 7,204 TOTAL SQFT

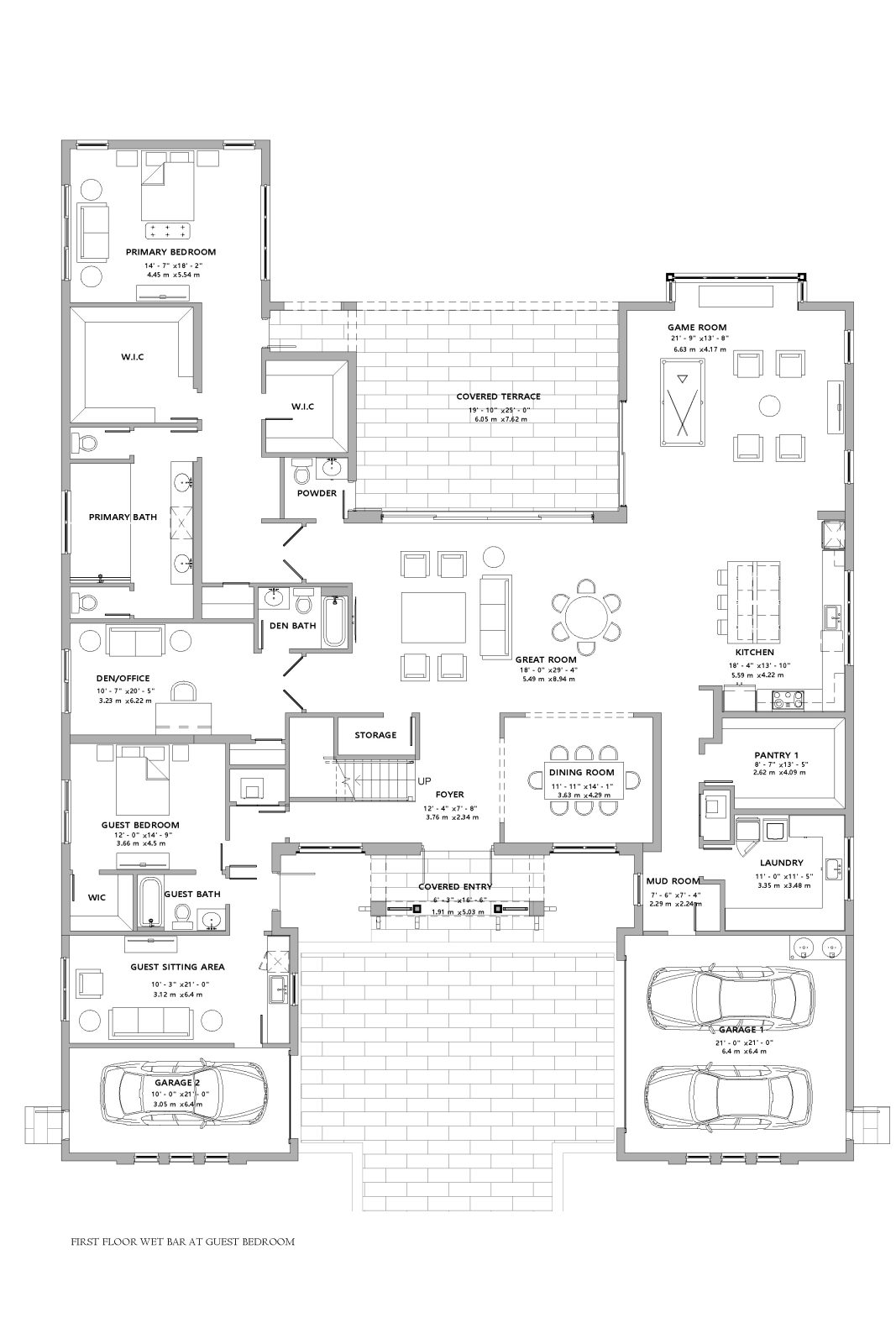
Two story, 5 bedrooms plus den and media room, 6.5 to 7.5 bathrooms, kitchen with large island and pantry, game room, great room, loft, ground floor primary bedroom with two walk-in closets, covered terrace, 4-car garage.

From $1,899,990

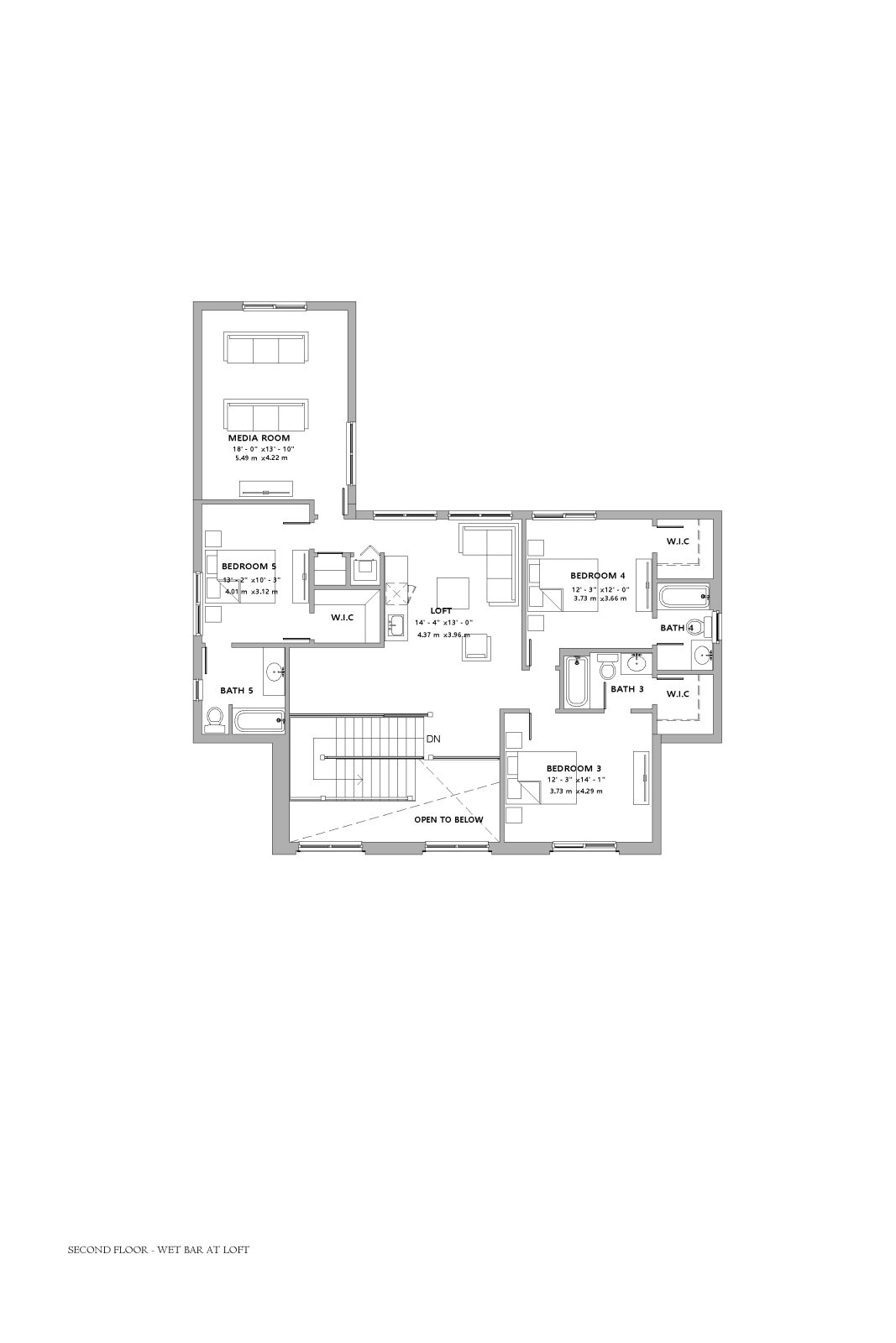
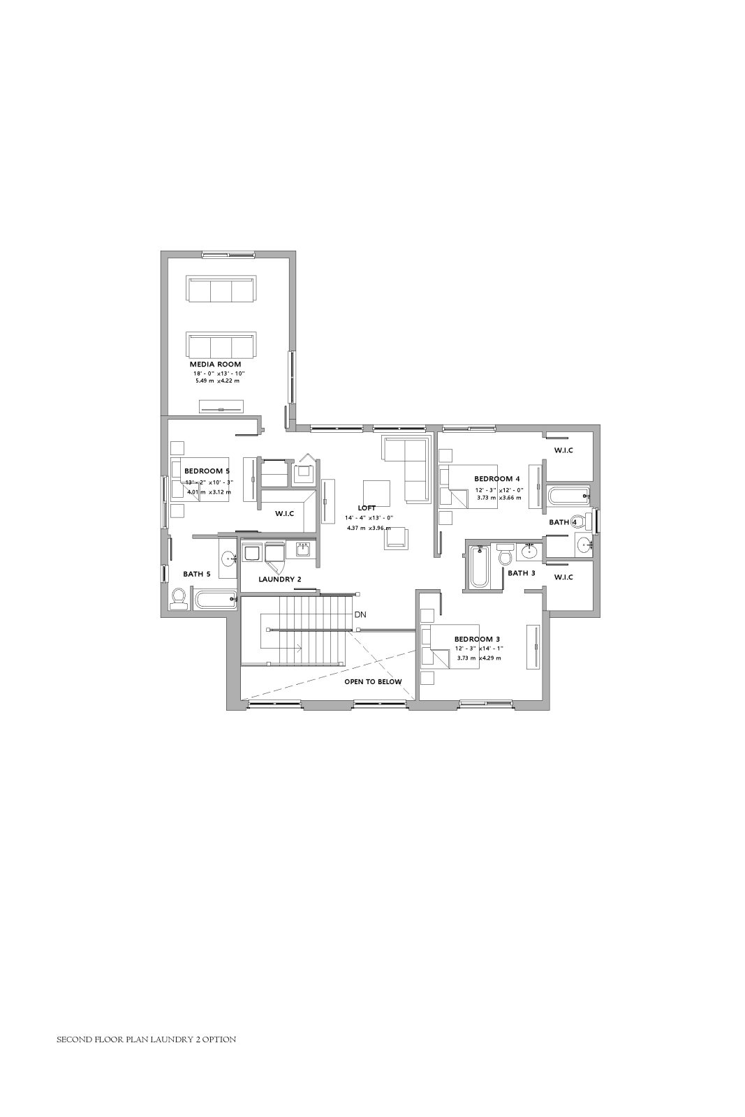
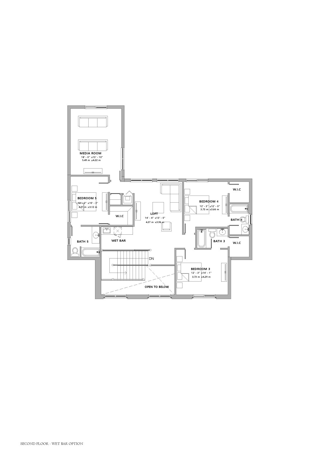
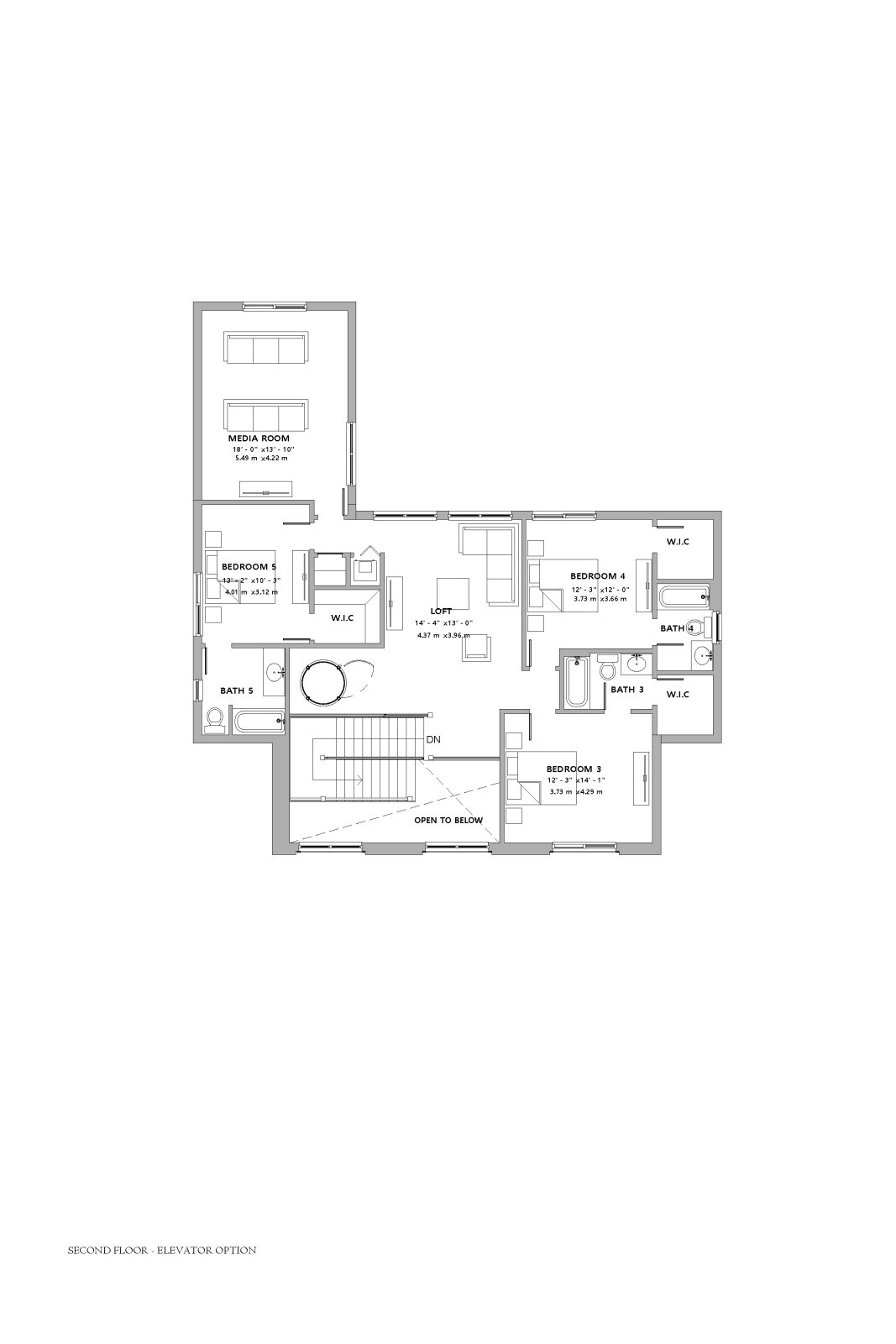
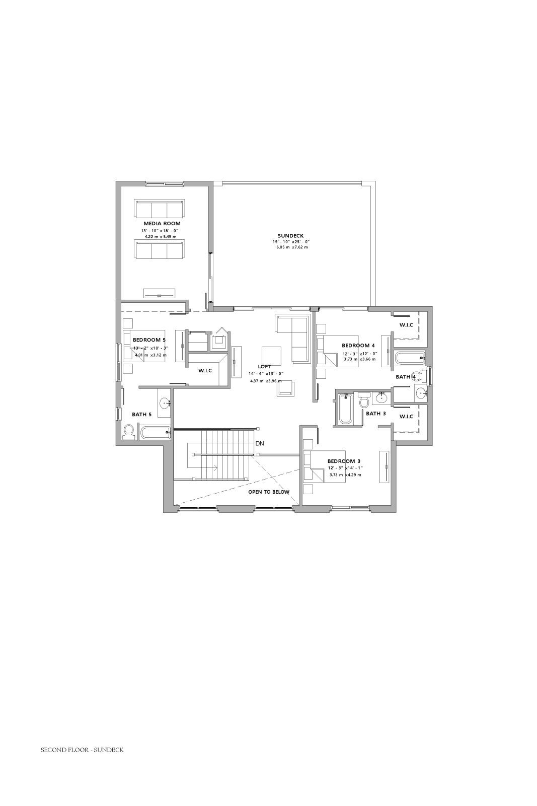
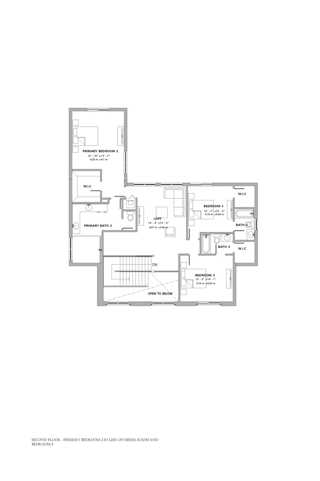
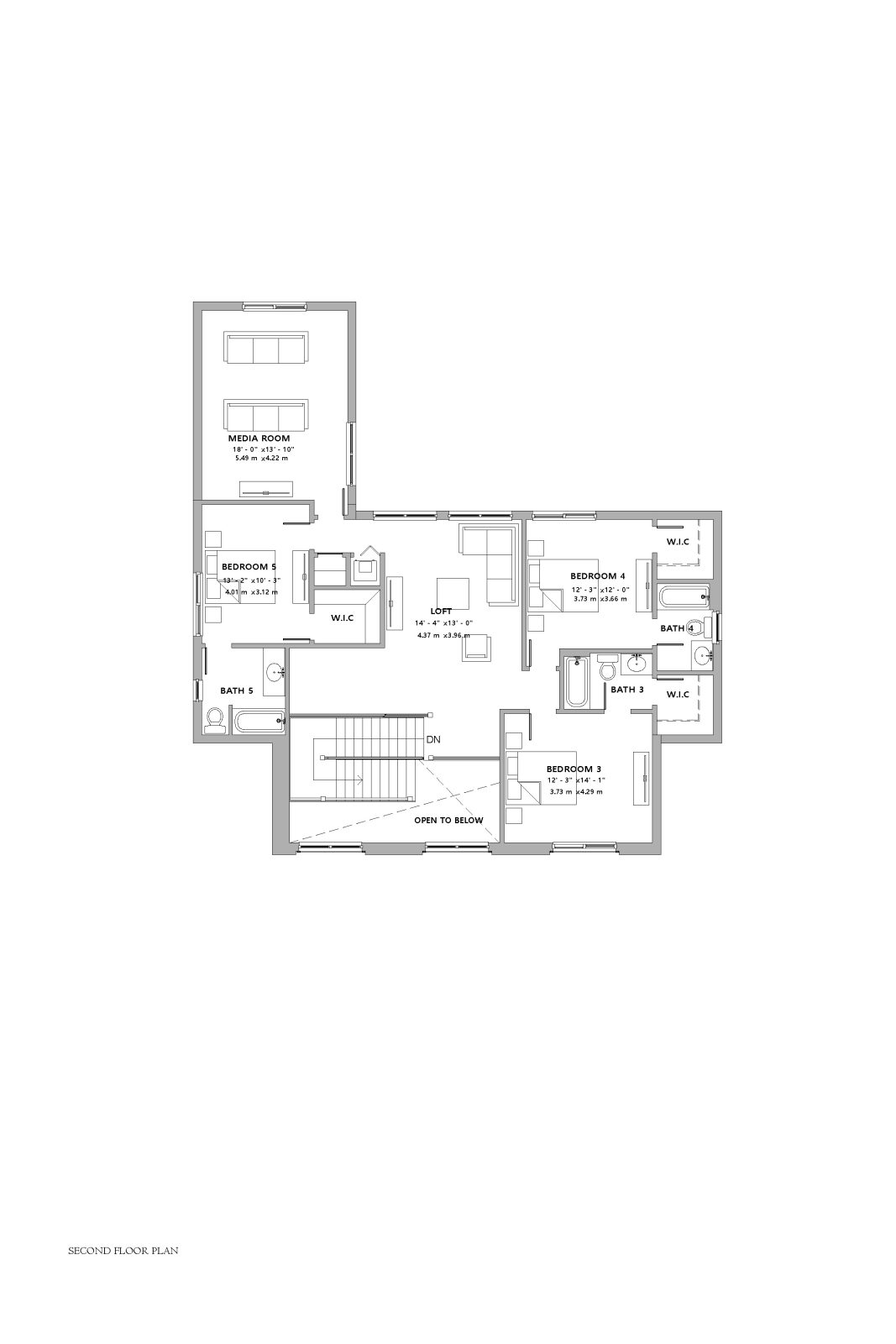
Kinship Floor Plans

  • First Floor
  • Second Floor

Guest Suite

Guest Suite with Wet Bar

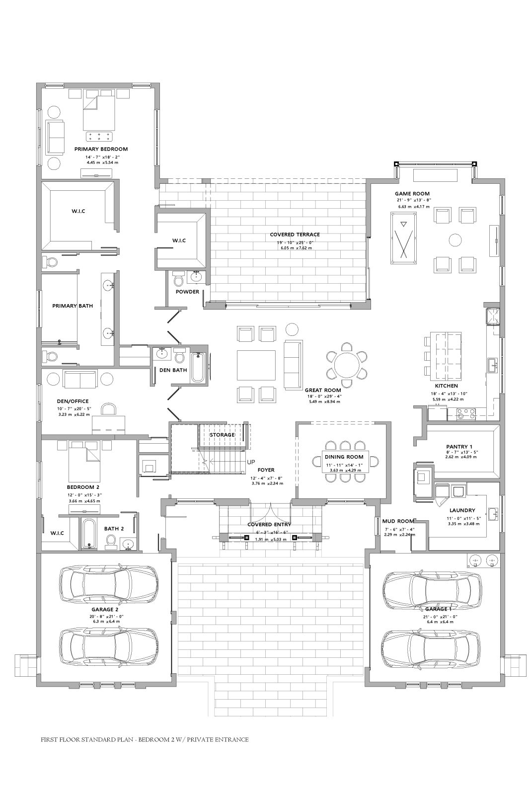
Bedroom 2 with Private Entrance

Door Between Game Room and Kitchen

Wet Bar at Great Room

Wet Bar at Game Room

Dry Bar at Game Room

Powder at Game Room

Pantry Style 2

Cabana Bath in Lieu of Powder

Summer Kitchen

Bathtub at Owner's Suite

Built in at Owner's Bath

Veggie Sink at Kitchen

Undercounter Fridge at Kitchen

Door at Dining Room

Built in at Mud Room

Second Laundry

Second Owner's Suite

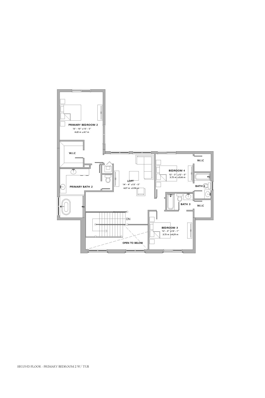
Second Owner's Suite with Tub

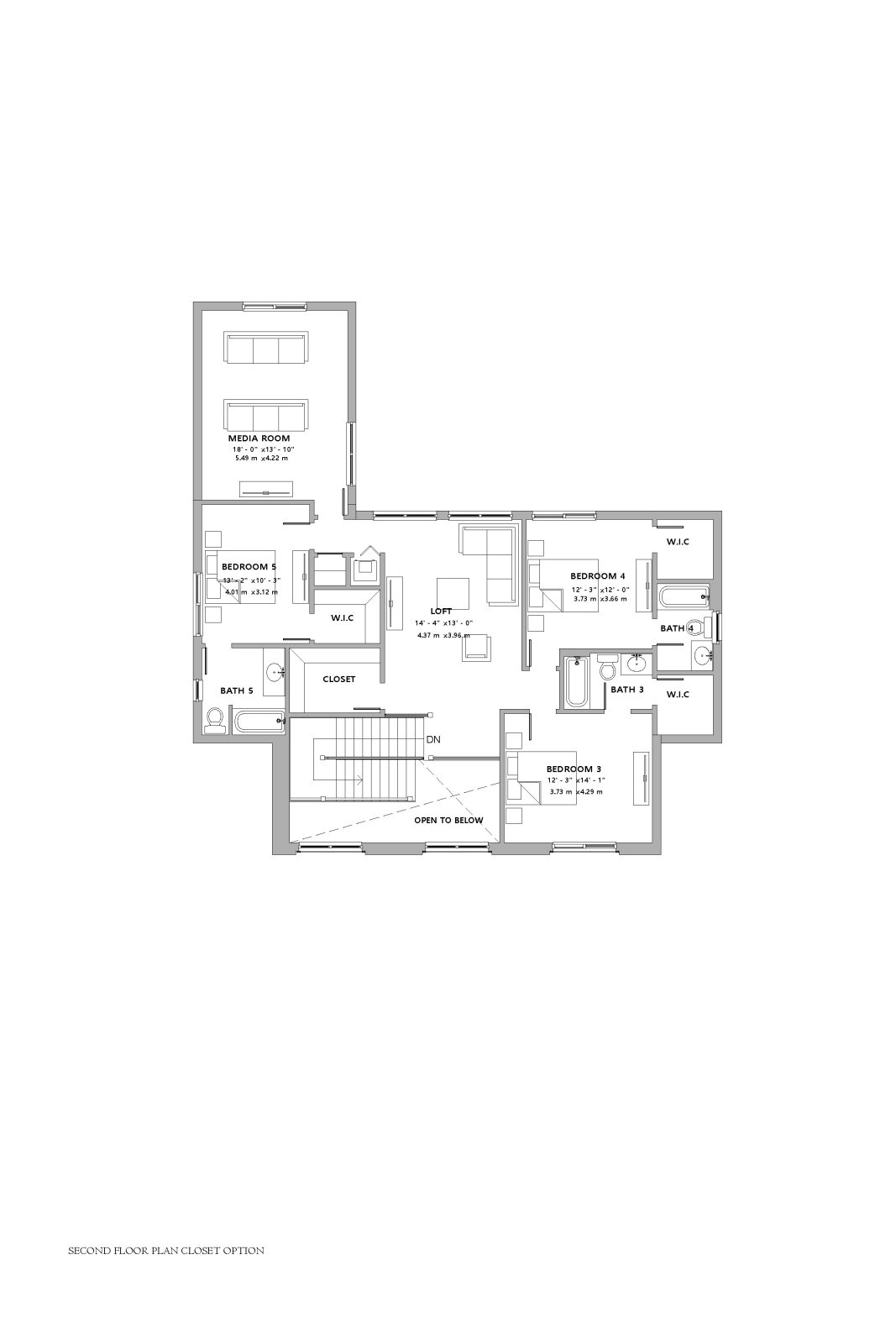
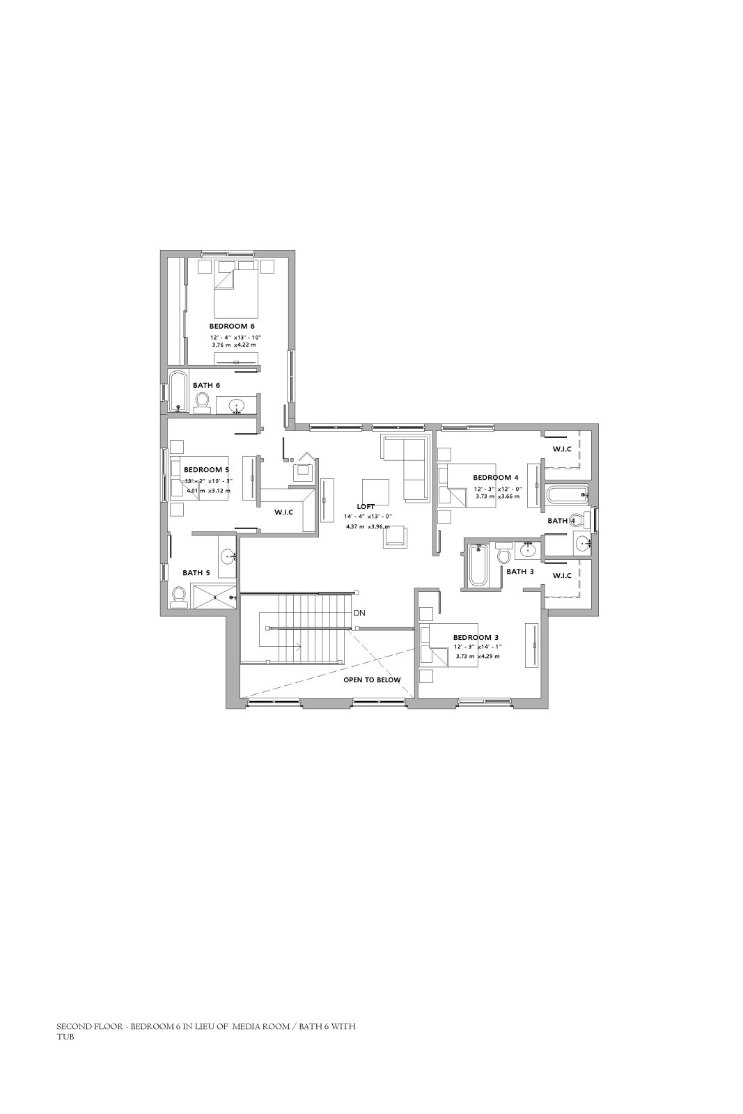
Bedroom 6 in Lieu of Media Room

Wet Bar at Loft 1

Wet Bar at Loft 2

WIC at Loft


Warning: Undefined variable $show_background_overlay in /srv/users/cchomes/apps/cchomes/public/wp-content/themes/cchomes-theme/community-content-blocks/hubspot_form/html.php on line 7

Extraordinary Living Awaits Learn More

There’s so much new happening! Stay informed – Fill out this form and we will be in contact with you shortly.

Call Us at (305) 424‑2203 to Speak with an Online Sales Consultant

By filling out the form above, you consent to receive marketing communications (via mail, email, telephone, or text message at the number you provided) from CC Homes. You may unsubscribe any time. See our privacy policy.