Active Communities

Recently Built

Balboa

Silverwood Vista Collection
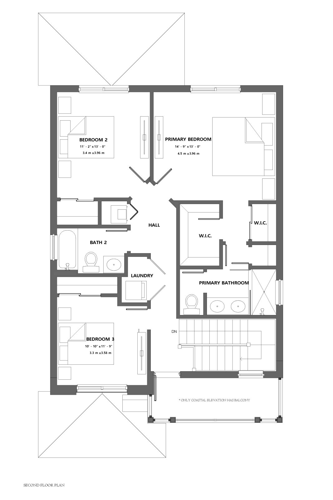
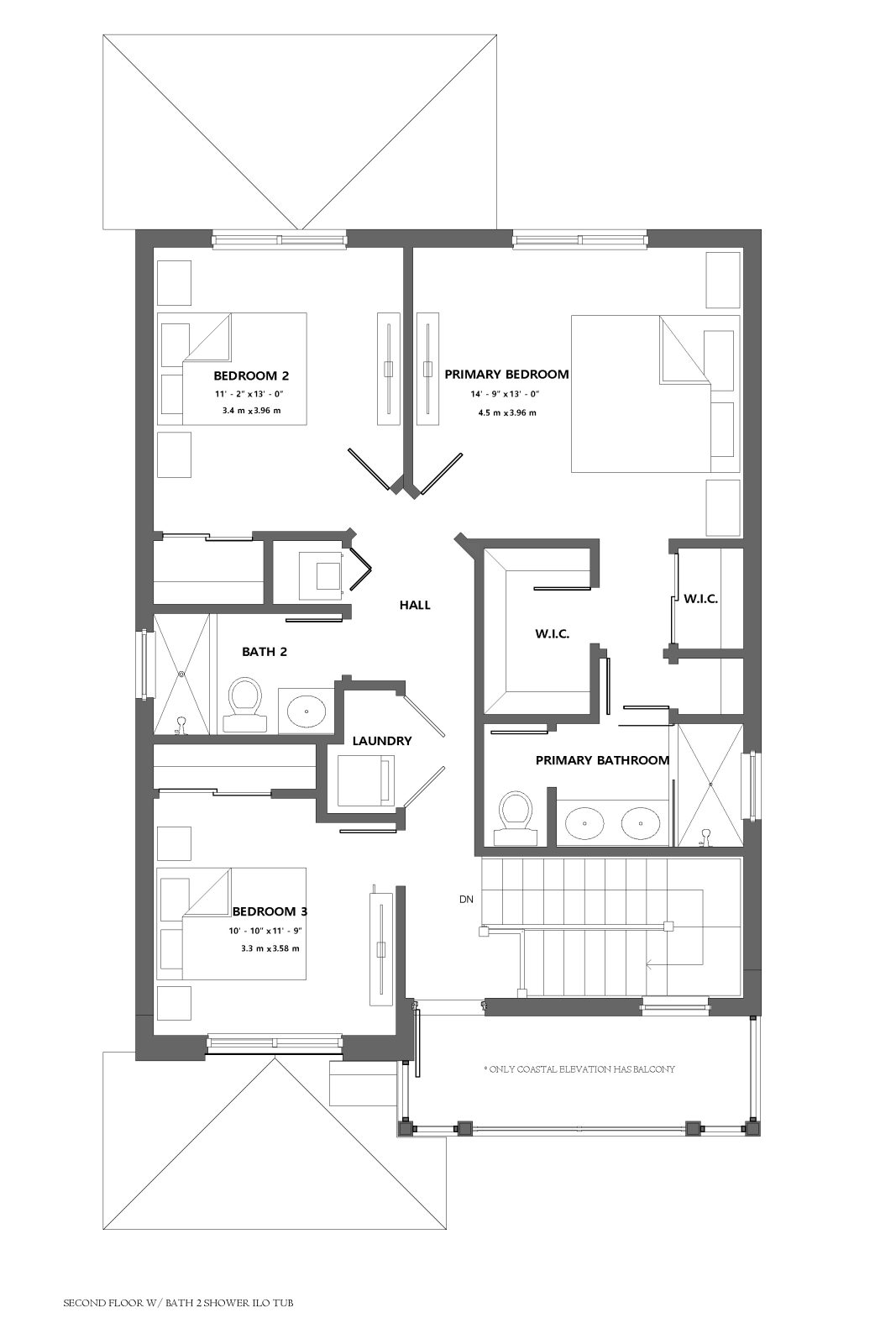
  • 3 Bedrooms
  • 2.5 Bathrooms
  • 1 Car Garage
  • 1,924 AC SQFT
  • 2,254 TOTAL SQFT

Two-story, 3 bedrooms, 2 ½ baths, kitchen with great room and family room, breakfast nook, storage closet, upstairs laundry, primary suite with walk-in closet, 1-car garage.

Designer-furnished model home open daily!

Video Tour

Balboa Floor Plans

  • First Floor
  • Second Floor

Shower in Lieu of Bath

Move-In Ready Homes 1 Home Available Now for this Plan

Reap all of the benefits of a new construction home without the wait! We encourage you to act fast on these popular quick close opportunities.

Save Thousands!

5551 Cassidy Lane

MOVE-IN READY - SW4-368 - Balboa two-story, 3 bedrooms, 2 ½ baths, kitchen with great room and family room, breakfast nook, storage closet, upstairs laundry, primary suite with walk-in closet, attached garage.

  • 3 Bedrooms
  • 2.5 Bathrooms
  • 1 Car Garage
  • 1,924 AC SQFT
  • 2,254 TOTAL SQFT
Listed at $431,439
VIEW HOME

Features Community Features

  • Located in desirable Ave Maria-Naples, Florida
  • Grand entry and elegant common area elements
  • Clubhouse & pool
  • Pristine lakes and natural preserves
  • Walking trails and bike paths
  • Excellent Ave Maria schools
  • Conveniently located near shopping, dining and recreational activities

Features Exterior Features

  • Mediterranean style concrete tile roof
  • Decorator color schemes and light textured finish
  • Brick paver driveway, walkway to home, and covered entry
  • Climate-friendly covered entry
  • Distinctive exterior door hardware and deadbolt lock
  • Lighting at front porch entry
  • Decorative coach light at garage
  • Impact glass windows on all first and second floor windows
  • Impact-resistant garage doors
  • Pavers at rear patio
  • Front and rear weatherproof (GFI) electrical outlets
  • Professionally landscaped and sodded home site
  • Automatic sprinkler system
  • Two outside hose bibs
  • Steel-reinforced concrete block construction
  • Termite treated foundation
  • Vented soffits
  • Screens on all operable windows

Features Interior Features

  • High ceilings
  • Light textured finish walls & knockdown ceilings throughout (excluding baths)
  • 6’8″ height doors throughout
  • Elegant decorator door hardware throughout
  • Decorative 2 1⁄4” wood door casings
  • Oversized 3 1⁄4” wood baseboards
  • 18” x 18” ceramic Dal-tile flooring in foyer, kitchen, laundry room and bathrooms
  • Deluxe wall-to-wall carpeting with padding in all non-tiled areas
  • Minimum 150 AMP electrical service
  • High efficiency air conditioning system
  • Air-conditioned baths, laundry rooms and walk-in closets
  • Energy-efficient R-11 garage wall insulation
  • Energy-efficient R-30 ceiling insulation (per plan)
  • Energy-efficient hot water heater
  • Rocker-style electrical switches
  • Vinyl-clad ventilated closet shelving
  • Marble or Corian windowsills throughout
  • Smoke and carbon monoxide detectors (per plan)
  • Structured wiring system includes wiring that home- runs to a central distribution panel
  • All phone wiring is Category-5 cable and is included in the kitchen and primary bedroom
  • Pre-wired for ceiling fans in great room
  • Full-sized washer and dryer

Features Inside your Kitchen

  • Stainless steel appliance package
  • Side-by-side refrigerator with ice and water dispenser in the door
  • Ceramic surface range with self-cleaning oven
  • Built-in microwave oven and hood combo with fan and light
  • Multi-cycle dishwasher
  • 1⁄2 HP garbage disposer
  • Contemporary cabinetry with 30” upper cabinets
  • Granite or quartz countertops with 4” backsplash
  • Stainless undermount sink
  • Distinctive single lever faucet with pull out spray feature
  • Overhead recessed lighting

Features Inside your Bath

  • Contemporary European style cabinetry in all baths
  • Granite or quartz vanity tops
  • 18” x 18” designer tile flooring
  • Tub/shower wall tile package in primary and secondary baths
  • Distinctive faucets and coordinated bath accessories
  • Elongated water closets
  • Exhaust fans
  • Full-width mirrors
  • Decorator lighting fixtures

Contact Get in Touch Today

It’s time to escape the ordinary and start experiencing the life you always imagined.
Let us know your questions or schedule a visit by completing the form below.

Sales & Models Gallery Open Daily 9:30am to 5:30pm
5009 Alonza Avenue, Ave Maria FL 34142
Call (305) 424‑2203 to Speak with an Online Sales Consultant

By filling out the form above, you consent to receive marketing communications (via mail, email, telephone, or text message at the number you provided) from CC Homes. You may unsubscribe any time. See our privacy policy.